The Building of the Simple House – Story by Story

The Simple House At The Farm
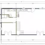
Below, we take your story by story through the challenges, trials, tribulations and excitement of building “Our Simple House.” From permits to plans, construction of the foundation, walls and full exterior – right down to creating and pouring our own concrete counter tops and finishing off the interior. If you want to know about building a simple house step by step – then this is it.
Our goals for the house are simple and straightforward: Design and build – as much as possible on our own – a minimal cost, energy-efficient, low maintenance home that utilizes only the space we need. A simple home that allows us to live and enjoy the farm now and forever.
When it comes right down to it – every person, every couple and every family has different needs for what works best for them. With that said, one thing is for sure – there is an awful lot of wasted and unused space in many of the homes built today, and that space is costly, time-consuming and increasingly difficult to maintain as we all grow older.
We hope that by eliminating the wasted space and only building what we need – we can create a home at the farm that allows us the freedom to enjoy life.There is a tremendous amount of freedom in living with less. In reality, it will allow us to live with so much more.
Here are the articles, and the story of building our Simple House.
[wprpw_display_layout id=5]
